Casa Indipendente in Vendita a Specchia
Casa indipendente in vendita a Specchia, uno dei borghi più caratteristici del basso Salento.
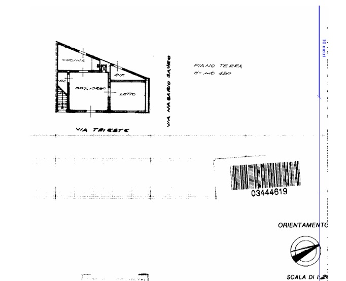
Questa affascinante casa offre un’opportunità unica per chi cerca una residenza autentica e ricca di storia. Con doppio ingresso su due strade, via Trieste e via Battisti, la proprietà garantisce comodità e accessibilità.
Gli interni della casa sono impreziositi da volte tradizionali a stella, che conferiscono un tocco di eleganza e tradizione. La casa si compone di due vani principali: un cucinotto dotato di camino, ideale per le serate invernali, e un bagno. Una scala esterna conduce a un vano deposito e all’area solare ad uso esclusivo, perfetta per momenti di relax all’aperto.
Con una superficie calpestabile di 60 m², la casa dispone di tre locali ben distribuiti. Nonostante sia una proprietà di seconda mano, si presenta in buono stato e pronta per essere abitata.
Non perdere l’opportunità di vivere in un luogo incantevole come Specchia, dove tradizione e modernità si incontrano armoniosamente.





















