Villetta a Schiera in Vendita a Torre Pali: La tua Casa a 150m dal Mare
Se stai cercando una casa al mare in Salento, questa villetta a schiera in vendita a Torre Pali rappresenta un’opportunità irripetibile. Situata nella tranquilla via Alemanno, la proprietà si trova in un contesto residenziale pacifico, a soli 150 metri dalla spiaggia di sabbia finissima, una delle mete più amate della marina di Salve.
Spazi Esterni e Comfort
Questa nuova costruzione a Torre Pali è progettata per chi ama vivere all’aperto. La villetta dispone di:
- Uno spazio antistante di circa 32 mq, perfetto per un ingresso accogliente o un piccolo giardino privato.
- Un cortile retrostante di 20 mq, ideale per cene estive in totale privacy.
- Una terrazza al primo piano, dove potrai goderti il sole del Salento in ogni momento della giornata.
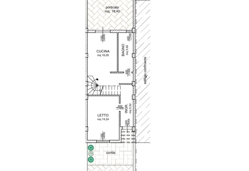
Caratteristiche degli Interni
La villetta, di circa 70 m² commerciali, si sviluppa su due livelli ottimizzati per il massimo comfort:
- Piano Terra:Ingresso su zona giorno luminosa con angolo cottura, una camera da letto e un bagno funzionale.
- Primo Piano:Seconda camera da letto con bagno privato e accesso diretto alla terrazza.
Perché scegliere questa casa a Torre Pali?
Acquistare un immobile a Torre Pali oggi significa investire in una località in forte crescita turistica. La proprietà è già collegata alle utenze cittadine e viene consegnata ultimata chiavi in mano.
- Prezzo:€ 210.000
- Locali:4 (2 camere da letto)
- Bagni:2
- Orientamento:Nord-Sud (ventilazione naturale garantita)
Non lasciarti sfuggire questa casa nuova di zecca a Torre Pali. È la soluzione ideale sia come residenza estiva che come investimento immobiliare per affitti turistici.

























