Casa Indipendente in Vendita di Miggiano
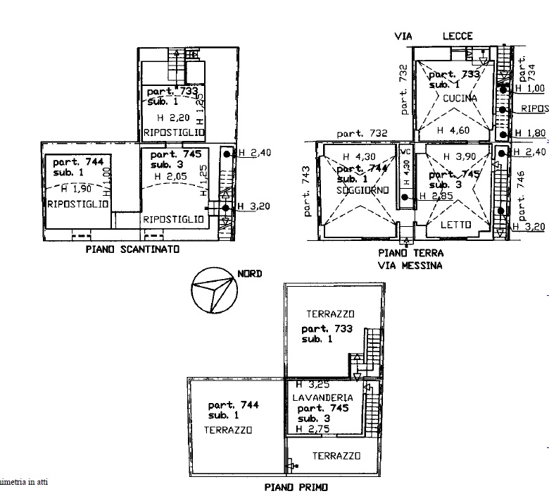
Scopri questa affascinante casa indipendente in vendita a Miggiano, nel cuore del centro storico a pochi passi dal parco comunale. Con una superficie di circa 150 mq, l’immobile si sviluppa su tre livelli, offrendo ampi spazi e molteplici possibilità di personalizzazione. Al piano terra, una luminosa zona giorno si affaccia sulla strada, creando un ambiente accogliente e vivace.
Sempre al piano terra, due camere da letto collegate da un piccolo disimpegno garantiscono privacy e comfort. Non perdere l’opportunità di accedere alla strada retrostante, ideale per chi cerca un contesto tranquillo ma centrale. La cantina di circa 60 mq, con accesso tramite una piccola scalinata, offre ulteriore spazio per riporre oggetti o creare un’area hobby.
Inoltre, l’accesso al terrazzo tramite scala esterna rappresenta un valore aggiunto per godere di momenti di relax all’aria aperta. Questa casa, da ristrutturare, è perfetta per chi desidera investire in un progetto personale. Con 7 locali e 2 bagni, le possibilità sono infinite. Non lasciarti sfuggire questa occasione unica nel cuore di Miggiano!



























