Casa Indipendente Ristrutturata a Tricase (loc. Depressa)
Cerchi una casa indipendente in vendita che unisca il fascino della tradizione salentina alla massima efficienza energetica? Questa proprietà su due livelli, situata in una zona tranquilla e panoramica, è la soluzione ideale per chi cerca comfort e risparmio immediato.
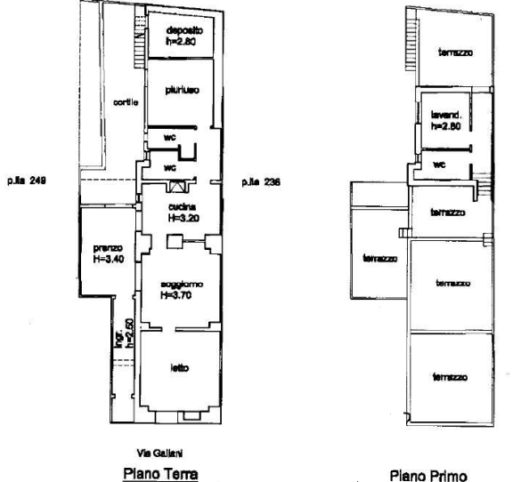
Spazi Interni e Carattere
Con una superficie di 155 m², l’immobile accoglie con splendide volte a stella che donano eleganza e carattere. La casa è così composta:
- Zona Giorno: Sala da pranzo accogliente, cucina abitabile con camino e salotto relax con stufa in ghisa a legna.
- Zona Notte: 3 camere da letto ampie (due al piano terra e una al primo piano per la massima privacy).
- Servizi: 3 bagni finestrati, di cui uno dotato di vasca.
- Praticità: Doppio ingresso indipendente e scala esterna di collegamento tra i piani.
Efficienza Energetica al Top (Classe A+)
L’immobile è stato oggetto di una riqualificazione profonda tramite Superbonus 110% (giugno 2021), garantendo costi di gestione bassissimi e tecnologie all’avanguardia:
- Impianto Fotovoltaico da 6 KW con batteria di accumulo da 20 Kw.
- Pompa di calore e caldaia a metano (entrambe con garanzia estesa fino al 2027).
- Cappotto termico su tutte le terrazze.
- Pannelli solari per la produzione di acqua calda sanitaria.
- Infissi in legno-alluminio a taglio termico con zanzariere.
- Wallbox privata per la ricarica di auto elettriche.
- Impianto di aria condizionata di ultima generazione (installato nel 2023).
Perché scegliere questa casa?
Oltre alle finiture di pregio e al locale deposito incluso, la casa viene venduta completa di arredi. È una soluzione “chiavi in mano”, sicura dal punto di vista urbanistico e pronta per essere abitata.
Non lasciarti sfuggire questa opportunità unica. Contattaci oggi stesso per organizzare una visita e scoprire dal vivo il fascino di questa casa indipendente panoramica!






































