Casa Indipendente in Vendita a Salve: Fascino Salentino e Volte a Stella
Se stai cercando una casa indipendente in vendita a Salve, questa proprietà rappresenta un’opportunità unica nel cuore del Capo di Leuca. Situata in via Diaz, uno dei principali snodi del borgo, l’abitazione permette di raggiungere comodamente a piedi il suggestivo centro storico e garantisce la vicinanza a tutti i servizi essenziali.
Caratteristiche dell’Immobile
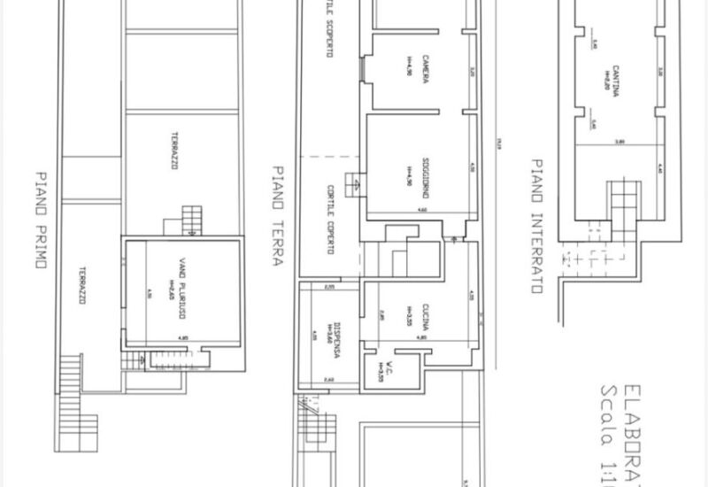
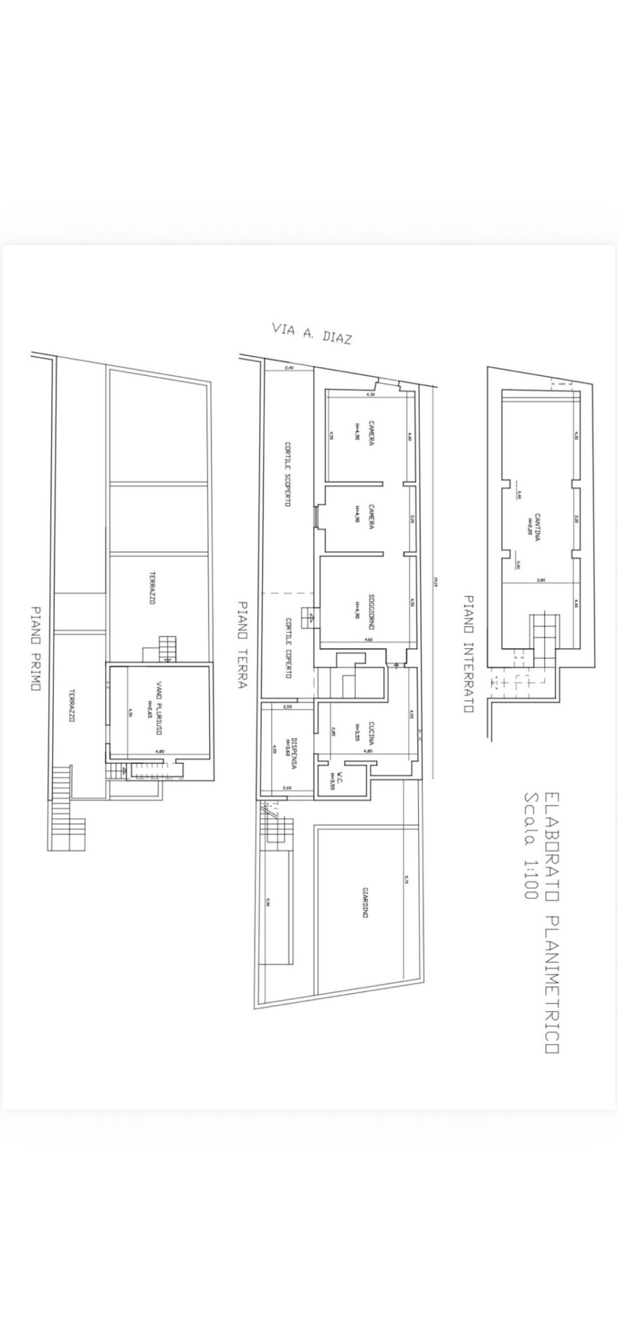
L’abitazione si sviluppa interamente al piano terra su una superficie di circa 100 mq. Gli interni sono un omaggio alla tradizione architettonica locale, impreziositi da splendide volte a stella che donano carattere e respiro agli ambienti.
La disposizione degli spazi è funzionale e lineare:
- 5 vani principali ampi e luminosi;
- Cortile antistante e un riservato giardino retrostante;
- Cantina di 30 mq con tipica volta a botte, ideale per la conservazione o come spazio relax;
- Vano deposito al primo piano con accesso all’area solare di proprietà.
Vivere a Salve: tra Storia e Mare
Questa casa non è solo un immobile, ma un racconto di storia e modernità. Salve è una cittadina dinamica e organizzata, capace di preservare il fascino dell’entroterra salentino pur essendo a pochissimi chilometri dalle spiagge dorate di Pescoluse e dalle rinomate Maldive del Salento.
La posizione è strategica anche per chi ama la natura: a breve distanza si trova la suggestiva “Valle degli Elefanti”, dove monumentali ulivi secolari sono diventati sculture naturali, offrendo scorci paesaggistici unici al mondo.
Perché investire in questa proprietà?
L’abitazione è abitabile da subito, ma si presta perfettamente a un progetto di ristrutturazione mirato a trasformarla in una dimora di charme o in una struttura ricettiva di pregio. Che tu stia cercando una residenza principale o un investimento nel mercato Immobiliare del Salento, questa casa indipendente a Salve è la scelta ideale per chi cerca autenticità e comfort
































